Milton Centennial Pool
We are considering not opening the Milton Centennial Pool for the 2026/27 season, for a few key reasons. Read more about this and let us know what you think.
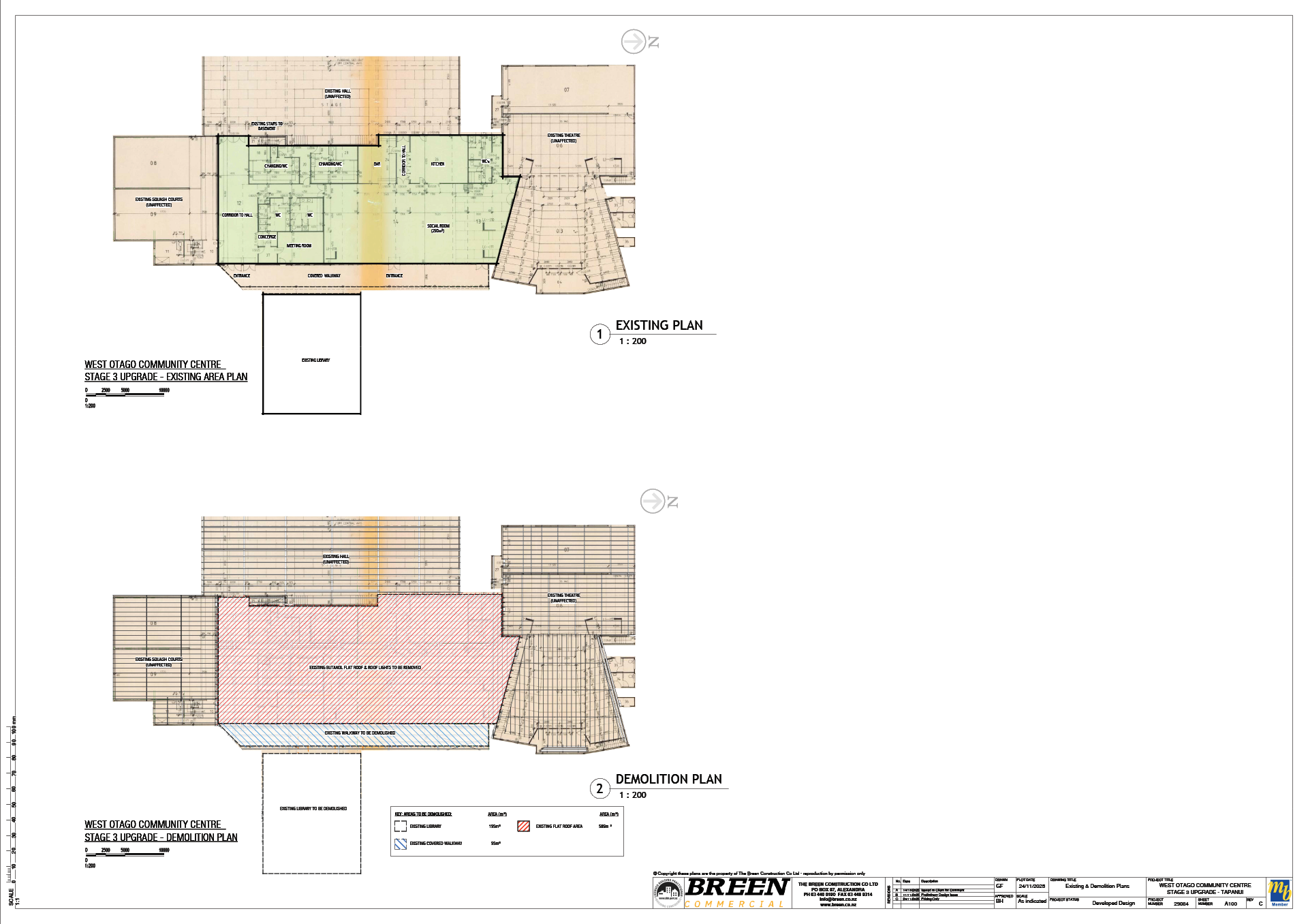
The Tapanui Community Library was constructed in 1966. Open 5 days a week and providing both library and council services, it is a well-used facility with high visitor numbers.
However, there is extensive renewal work required on the facility. The roof has developed leaks, it has rotted window frames, inadequate public toilet facilities and new carpets are needed. Space to provide programming and engagement is lacking, and accessibility is poor. The building is constructed predominantly of concrete block and is at only 10% of earthquake strength specification.
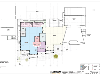
The West Otago Community Centre (WOCC) sits directly behind the library. To date, the WOCC Committee has invested almost $1 million for roof strengthening and replacement, and upgrading the theatreâs infrastructure and electrical and lighting systems. Further renewal work is required to replace the roof structure over the central part of the building, and to install a fire detection and alarm system.
Library staff are the primary point of contact for users of the facility on behalf of the WOCC committee, taking bookings, providing access and invoicing. Due to this close working relationship, the proximity of the two facilities, and the shared need for renewal work, it is feasible to incorporate the library into the WOCC to create an integrated community hub for the area.
Work to incorporate the library into the WOCC facility is expected to cost approximately $3 million, excluding landscaping costs. The WOCC committee has sought Council commitment to fund up to $2.5 million, with an expectation that the committee will raise the remainder of funds. The rating impact would commence in 2028/29 financial year.
If the integration project did not proceed, Council would need to scope the extensive renewal work needed for the existing Tapanui Library and the WOCC committee would likely seek further Council funding towards ongoing renewal work.
When you submit your feedback, let us know which option you support and why.
| Options | Considerations |
| Option 1: I support funding of up to $2.5 million for the Integrated Tapanui Library and West Otago Community Centre, fully rated through UAGC across the district. | Fully rated through UAGC (Uniform Annual General Charge) across the district, which is how Council rates all libraries. The estimated rating impact for this option would be $16.80 (GST incl.) p/a across the district from the UAGC, commencing 2028/29. |
| Option 2: I support funding of up to $2.5 million for the Integrated Tapanui Library and West Otago Community Centre, partially rated under Libraries and partially rated under Community Centres. | Partially rated:
The estimated rating impact from this option (commencing 2028/29) would be:
|
| Option 3: I do not support the proposed funding of up to $2.5m for the Integrated Tapanui Library and West Otago Community Centre. | No immediate rating impact. Council would need to scope and decide on extensive renewal work for the existing library. The WOCC committee will likely seek further funding toward the ongoing renewal work. |
We are considering not opening the Milton Centennial Pool for the 2026/27 season, for a few key reasons. Read more about this and let us know what you think.
The Voluntary Targeted Rating (VTR) scheme allows Clutha District ratepayers to fund additional services that benefit them directly. Voluntary targeted rates are self-funding, meaning rates funding is not required.
Council is considering recommencing the VTR scheme from 2026/27 for a few specific activities, and we want to know what you think.
Council is proposing to change the funding model for the rural water schemes in our district, by introducing Availability Charging and Assistance Capping. We would also need to amend our Revenue and Financing Policy.
Urban water rating maps have been reviewed, and some minor changes have been made to ensure they reflect existing urban and some transition areas of the District Plan. The changes made also reflect urban growth.
Within the urban water areas, a serviceability charge applies where water supply is available. This charge generally does not apply when a rating unit is being supplied by the network and a water rate is being charged.
Property owners can review the maps and give us their feedback.
Have questions or want to learn more about a project, contact us below:
| Phone | 0800 801 350 |
|---|---|
| Website | www.cluthadc.govt.nz/ |
| In writing | PO BOX 25, BALCLUTHA 9240, NEW ZEALAND (Physical address: 1 Rosebank Terrace, Balclutha) |
This site is owned and operated by Clutha District Council using software licensed from Social Pinpoint. For details on how Clutha District Council collects and protects your personal information, refer to their Privacy Policy and Privacy Statement below. For details of how Social Pinpoint may access personal information, please refer to Social Pinpointâs Privacy Policy.
Your Privacy is important to Clutha District Council. The Privacy Statement covers our collection, holding, use and disclosure of your personal information, as well as our obligations and your rights as set out in the Privacy Act 2020. For more details please refer to our Privacy Statement below.
For more information, please refer to the Privacy Commissioner's guide to the Privacy Act 1993 and its amendments, or call the Privacy Commissioner's privacy hotline: 0800 803 909.
Users who wish to request access to, or request correction of personal information, may contact help.desk@cluthadc.govt.nz
Your privacy is important to Clutha District Council. This Privacy Statement covers our collection, use and disclosure of your personal information as well as our obligations and your rights as set out in the Privacy Act 2020.
In this privacy statement, the Council is referred to as âweâ, âourâ or âusâ. We may change this Privacy statement from time to time. The most current version will be available online.
Certain services and facilities we provide, or submissions, applications or requests you make to us, may be subject to additional terms and conditions and privacy statements. Therefore, we recommend that you carefully read the terms and conditions and any specific privacy statements that apply at the time you signâup to use our services, facilities or make a submission, application or request to us.
The personal information we collect means identifiable information about you. This may include your name, date of birth, address or area you live in, email address, telephone numbers, age, gender, household arrangement, prior criminal convictions, and pictures and video footage of you. It may also include information on your use of our services or facilities.
We may also collect any other personal information provided by you in connection with, or specifically related to your communications with us or your use of our services or facilities.
We may collect your personal information when you, or someone acting on your behalf, provides information to us directly. For example, when you:
We may also collect information indirectly through your use of our platforms and the services and functionality offered through them (for example through browser cookies).
We only collect your personal information when it is necessary for a specific purpose connected with the services we provide. The purpose for collecting and using your information varies according to the services you are using. In general, we collect your personal information fairly with your consent, for example in the performance of a contract with you, or to comply with laws and regulations.
When you visit one of our websites, we may use technology solutions such as âcookiesâ to provide you with better access to tailored information and services on the websites and to better serve you when you return to them. A cookie is a small data file that a website or app sends to your device, which may be stored for later retrieval by the website or app. If you want to disable cookies, you may do so by changing the settings on your browser. However, if you do so, you may not be able to use all the functions on our websites.
We use Google Analytics to further understand how some of our services may be improved. Google Analytics relies on the use of cookies.
We use nonâpersonalised statistics to monitor site traffic, to analyse trends, to gather demographic information about those who use our services, to improve our services and to improve user experience. These anonymised and/or amalgamated statistics do not include personal information.
As part of our commitment to providing the best possible service to our customers we may monitor and record phone calls for the following purposes:
Recordings will be securely stored. Any personal information you provide as part of the call will be managed in accordance with this privacy statement.
Closed Circuit Television (CCTV) capturing both sounds and footage, is used in particular areas to monitor public and traffic movements, secure Council facilities such as the library and isite, monitor public places in order to help reduce crime and antiâsocial behaviour, and to promote community safety.
Signage indicates where CCTV equipment is operating. CCTV footage will only be viewed by authorised people in accordance with the purpose noted above or to regularly check the system is operational. No attempt will be made to identify individuals from CCTV footage except in cases of reported or suspected incidents requiring investigation, or in relation to any legal proceedings.
Cameras may be worn by our any of our officers (for example: animal control) as a deterrent to antiâ social behaviour towards them and to provide a clear record of events if an altercation occurs.
Vehicles may contain dash cameras. Our staff may operate the cameras continuously whilst they are on duty in public places. Footage from cameras may be used as part of any reported or suspected investigations, or in relation to any legal proceedings.
We may use drones to support project work. This includes conducting condition assessments of our buildings, land and infrastructure assets, undertaking surveys of our property and capturing other property work under development. If we fly over private property for the purpose of survey works, we do so only with the relevant landownerâs consent. We do not use any footage of privately owned properties without this consent.
Our use of drones is conducted in accordance with Civil Aviation Authorityâs rules and guidance.
In the interests of supporting a transparent and accessible decisionâmaking process, public meetings of Council may be broadcast live online and then made available on our website.
Most of the filming at meetings of Council will cover elected members as they speak and debate at the meeting, and of staff presenting on reports and answering questions. However, the filming may also include shots of the public in the background and of anyone speaking at the meeting (such as in the public forum or at hearings on submissions). The footage will be publicly available and can be accessed from our website.
Other types of public meetings and events organised by council may be livestreamed, but you will be notified of this by signage at the entrance to the venue and/or by other communication prior to the meeting/event.
We may also take photos or video footage at events that we manage for internal or external publications. Signage on display or other communication at an event will let you know if photography or filming will be taking place. If you do not want to be included in any photos or video footage, please talk to one of our staff members present at the event.
The personal information that we collect from you, or someone acting on your behalf, may be used for any of the following purposes:
We may share your personal information with:
- Governmental organisations such as Inland Revenue or Ministry of Business, Innovation and Employment; or
- A debt collector agency to recover overdue materials or charges
If you do not provide us with all of the personal information about you that we request, we may not be able to adequately respond to your correspondence, process any applications you have submitted, provide the services or facilities you have requested, process payments or otherwise progress any requests or enquiries you have submitted.
In some circumstances, failure to provide information when requested may be unlawful, and/or result in legal consequences. These circumstances and the potential consequences will be explained to you when your personal information is collected.
We are committed to protecting your personal information and take all reasonable steps to ensure it is:
We may retain all personal information that we collect (on both our active systems and our archive systems), for as long as administratively necessary, in accordance with the Councilâs Records Retention and Disposal Policy and relevant legislation.
The Public Records Act 2005 requires us to retain âprotected recordsâ indefinitely. In some circumstances, your personal information may be included within a protected record, including submissions you make in relation to bylaws, annual or longâterm plans, and district planning instruments.
You have the right to know what information we hold about you, to request a copy and to request that we correct your information if inaccurate. Your rights of access to and correction of any personal information we hold about you are subject to the procedures set out in the Privacy Act.
We will endeavour to respond to your request as quickly as possible and no later than 20 working days after you make your request.
We reserve the right to amend this privacy statement from time to time by posting an updated privacy statement here on this website. We will collect, use, hold and disclose your personal information in accordance with our most recently updated version of the privacy statement.
You can contact us at anytime to ask about our Privacy Statement and privacy practices, to let us know that you are concerned about anything or make a complaint about the way weâve handled your personal information.
If you have any questions or complaints about the handling of your personal information, please contact:
Clutha District Council Privacy Officer
Email: help.desk@cluthadc.govt.nz
Postal Address: PO Box 25, Balclutha 9240
If you are not satisfied with the way we have handled your complaint, you have the right to make a complaint to the Office of the Privacy Commissioner at www.privacy.org.nz.
The following Terms and Conditions govern the use of Clutha Connect (âthe siteâ). The software platform is owned by Social Pinpoint Pty Ltd and operated by us, Clutha District Council.
By accessing and using this site, you are choosing to accept and comply with the Terms presented throughout this agreement as well as the Privacy Policy and Moderation Policy. These Terms apply to all visitors and users of this site. Linked sites, affiliated services or third party content or software have their own Terms that you must comply with. If you disagree with any of the Terms presented in this agreement, you may discontinue using the site immediately.
If you are under 18 years old, please ensure that your parent or guardian understands and accepts these Terms and Conditions (including the Privacy Policy and Moderation Policy).
While using the site, you must not violate any applicable laws and regulations. It is our duty to protect the confidentiality of content you provide on our site in accordance with our Privacy Policy. When you create an account with us, you must always provide us with accurate information. Failure to provide accurate information violates the Terms, which may result in immediate termination of your account on our service. You are responsible for protecting your own password you use for this site and for any activities done under that password. Unauthorised use of your password or account must be immediately reported to us. In some cases, we or our agents may require access to your user accounts to respond to technical issues.
We are not responsible for the content on the site that has been provided by the users of the site. Any content posted by you is subject to the rules of our Moderation Policy. Your contribution to the site may be edited, removed or not published if we consider it inappropriate (refer to Moderation Policy). Contributors should also be aware that their posts may remain online indefinitely. Where practical, you may choose not to identify yourself, deal with us on an anonymous basis or use a pseudonym.
You must understand and agree that, without limitation:
We may terminate or suspend access to your site and/or account immediately, without prior notice, including without limitation if you breach the Terms. We may immediately deactivate or delete your account and all the related files and information in your account. After your account has been terminated, the content you have posted may also remain indefinitely on the site.
If you want to terminate your own account, please send an email to help.desk@clutha.govt.nz.
These Terms shall be governed in accordance with the laws of New Zealand, without regards to its conflict of law provisions.
Clutha District Council, its subsidiaries, affiliates, officers, agents, licensors and other partners are not responsible for any loss, liability, claim, or demand, including legal fees, made by any third party due to or arising from a breach of this agreement and/or any breach of your representations and warranties set forth above.
This website contains the copyrighted material, trademarks, patents, trade secrets and other proprietary information (âIntellectual Propertyâ) of Clutha District Council and its suppliers and licensors. Clutha District Council owns and retains all proprietary rights in the intellectual property. All intellectual property in the content of this site including without limitation to text, software, source code, pages, documents and online graphics, photographs, sounds, audio, video and other interactive features are owned by or licensed to us.
Any original content that you submit or post on our site may be made available to the public and allows users to share your content (with the end user acknowledging your contribution) under the Creative Commons Attribution 3.0 New Zealand Licence.
Except for Intellectual Property which is in the public domain or for which you have been given written permission, you may not copy, alter, transmit, sell, distribute any of the Intellectual Property on this site.
We are not responsible for your communications or dealings, including payment and delivery of goods or services, with a third party found via our website. Any loss or damage incurred from those communications or dealings are solely between the user and the third party.
Users must agree that your use of the site is at your own risk. We make no warranty that the site will meet your requirements or be uninterrupted or error-free. Any material that the user downloads through the site is done at their own risk and are responsible for any damages to their computer system or loss of data.
We reserve the right, at our sole discretion, to modify or replace these Terms at any time without notice. The most recent version of the Terms can be seen on this page. By continuing to access or use our site after those revisions become effective, you agree and will comply to the revised terms. If you do not agree to the revised terms, please discontinue using our site.
If you have any questions about these Terms, please contact us at help.desk@cluthadc.govt.nz.
Enter your email address below. We will send you instructions to reset your password.
Back to Log in
Creating an account helps us better understand your needs and the needs of the community.
Already have an account? Log in now
Thank you, your account has been created.
Completing the questions below helps us better understand the diverse range of people who contribute their ideas. The questions are optional.
Youâre using an outdated browser.
Some features of this website may not work correctly. To get a better experience we strongly recommend you download a new browser for free: